
3 Beds
2 Baths
1,576 SqFt
3 Beds
2 Baths
1,576 SqFt
Key Details
Property Type Single Family Home
Sub Type Single Family Residence
Listing Status Active
Purchase Type For Rent
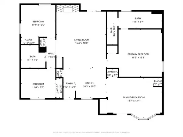
Square Footage 1,576 sqft
Subdivision Rancho North Add
MLS Listing ID 21227121
Style Traditional
Bedrooms 3
Full Baths 2
HOA Y/N None
Year Built 1969
Lot Size 8,102 Sqft
Acres 0.186
Property Sub-Type Single Family Residence
Property Description
Location
State TX
County Tarrant
Direction From 820 exit 287 go North, exit Longhorn and go west to Opal on the right.
Rooms
Dining Room 1
Interior
Interior Features Decorative Lighting
Heating Central
Cooling Ceiling Fan(s), Central Air
Flooring Carpet, Ceramic Tile, Laminate, Vinyl
Fireplaces Number 1
Fireplaces Type Wood Burning
Appliance Dishwasher, Electric Cooktop, Electric Oven, Microwave
Heat Source Central
Laundry In Kitchen
Exterior
Carport Spaces 2
Fence Fenced, Wood
Utilities Available City Sewer, City Water
Roof Type Composition
Total Parking Spaces 2
Garage No
Building
Story One
Foundation Other
Level or Stories One
Structure Type Brick,Wood
Schools
Elementary Schools Saginaw
Middle Schools Marine Creek
High Schools Boswell
School District Eagle Mt-Saginaw Isd
Others
Pets Allowed Yes Pets Allowed, Breed Restrictions, Cats OK, Dogs OK, Number Limit, Size Limit
Restrictions No Smoking,No Sublease,No Waterbeds,Pet Restrictions
Pets Allowed Yes Pets Allowed, Breed Restrictions, Cats OK, Dogs OK, Number Limit, Size Limit
Virtual Tour https://www.propertypanorama.com/instaview/ntreis/21227121







